Ada van Hollandstraat 3

4472BL 'S-HEER HENDRIKSKINDEREN Vraagprijs: € 590.000,- k.k.
130 m² oppervlakte
497 m² perceel
3 slaapkamers

Omschrijving

Deze degelijke vrijstaande woning is gelegen op een zeer rustige locatie, op een mooi perceel van 497 m². Een fijne plek aan de rand van het dorp, met volop privacy en ruimte.

De woning heeft veel te bieden. Het woonoppervlak bedraagt circa 130 m² en de woning beschikt over een binnendoor bereikbare garage, drie ruime slaapkamers en een royale badkamer. De tuin ligt rondom de woning en biedt een goede bezonning. In combinatie met de rustige ligging en de korte fietsafstand tot Goes maakt dit het een aantrekkelijk en comfortabel woonhuis voor een brede doelgroep.

De woning is omstreeks 2000 gebouwd met degelijke materialen. Het gehele huis is voorzien van kunststof kozijnen, is goed geïsoleerd en beschikt over 8 zonnepanelen. Het energielabel is A. De woning verkeert in een goede staat van onderhoud en biedt door de solide bouw een uitstekende basis om naar eigen wens te moderniseren.

's-Heer Hendrikskinderen is een gemoedelijk dorp dat direct grenst aan Goes. U woont hier rustig, met alle stedelijke voorzieningen binnen handbereik. In het dorp zijn onder andere een basisschool en diverse verenigingen aanwezig. Het centrum van Goes is per fiets snel en eenvoudig bereikbaar.

Indeling

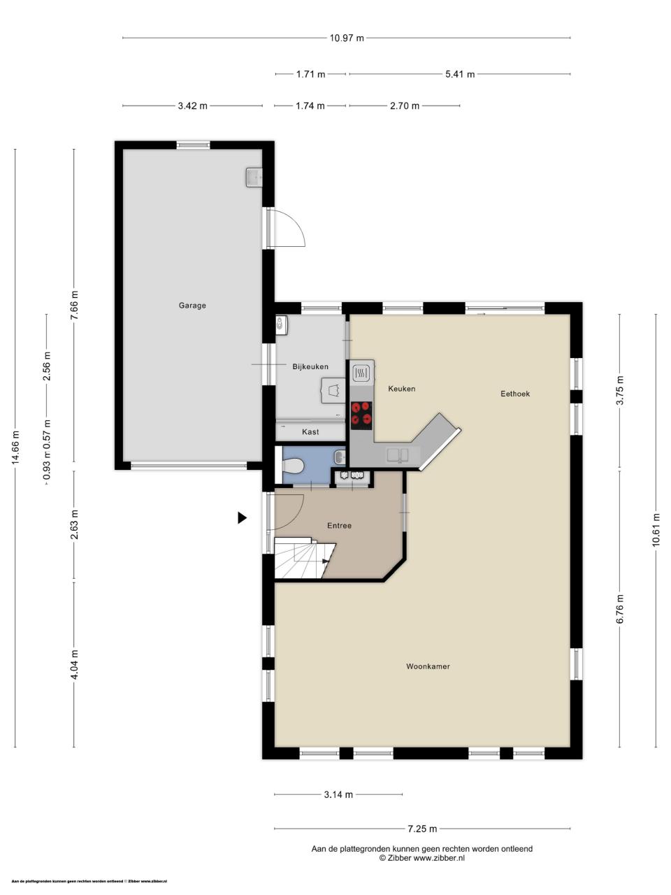
Begane grond
Entree met hal, meterkast en toilet. Vanuit de hal bereikt u de royale L-vormige woonkamer van ruim 50 m². Aan de voorzijde is plaats voor een comfortabele zithoek, terwijl aan de tuinzijde een grote eethoek kan worden ingericht. Dankzij de grote raampartijen is de woonkamer opvallend licht. De schuifpui aan de achterzijde zorgt voor direct contact met de tuin.

De open keuken is aan de achterzijde gesitueerd. Deze is functioneel, maar enigszins gedateerd en voorzien van de benodigde inbouwapparatuur. Aansluitend bevindt zich een praktische bijkeuken met cv-opstelling, bergruimte en toegang tot de garage. De garage is voorzien van een elektrische overheaddeur aan de voorzijde en een loopdeur naar de tuin.

Eerste verdieping
Op de verdieping bevinden zich drie goede slaapkamers. Aan de achterzijde zijn twee slaapkamers van circa 8 m² en 10 m², gemeten op de 1,50-meterlijn, met onder de schuine kap extra bergruimte.
De grootste slaapkamer aan de voorzijde heeft een oppervlakte van circa 19 m².
De badkamer beschikt over een dakkapel aan de zijkant en is daardoor verrassend ruim. Deze is ingericht met een ligbad, douche, wastafelmeubel en toilet.

Tweede verdieping
Bergvliering, bereikbaar via een vlizotrap.

De tuin

De tuin ligt rondom de woning. De achtertuin biedt gedurende de gehele dag een goede bezonning en is ingericht met een terras, een ruim gazon en borders met vaste beplanting. Voor de garage is een oprit aanwezig.

Zoekt u een degelijke, royale vrijstaande woning met een fijne tuin op een rustige locatie, maar toch dichtbij Goes? Dan is dit huis absoluut een bezichtiging waard.

Oplevering: in onderling overleg

Lees de volledige omschrijving

Overdracht

Vraagprijs Vraagprijs: € 590.000,- k.k.
Status beschikbaar
Aanvaarding in overleg

Bouw

Type Woonhuis
Type woning Vrijstaande woning
Soort woning Eengezinswoning
Bouwjaar 2000
Onderhoud binnen Redelijk, goed
Onderhoud buiten Redelijk, goed
Dak Zadeldak
Dak materialen Pannen

Vrijblijvend gesprek met onze hypotheekadviseur?

Tuin

Tuin Tuin rondom
Tuin oppervlakte 497
Hoofd tuin Achtertuin
Hoofd tuin opp. 240 m²
Tuin ligging Oost, zuid

Woonhuis

Kamers 4
Slaapkamers 3
Woonopp. 130 m²
Inhoud 578 m³
Perceelopp. 497 m²
Woonkamer Woonkamer
Keuken Open keuken
Ligging Aan rustige weg, beschutte ligging, in woonwijk
Voorzieningen Buitenzonwering, tv kabel, zonnepanelen, bijkeuken, toilet, hal

Locatie

Ligging Aan rustige weg, beschutte ligging, in woonwijk

Energie

Energielabel A
Isolatie Hr-glas, dakisolatie, muurisolatie, vloerisolatie, volledig geïsoleerd
Verwarming C.v.-ketel
Warm water C.v.-ketel
Type c. v. Intergas
Bouwjaar c. v. 2022

Garage

Garage Aangebouwd steen
Garage capactiteit 1

Berging

Type berging Vrijstaand hout

Benieuwd naar de waarde van uw woning?

Vraag nu een objectieve, deskundige waardebepaling aan.

Aanvragen
Meer informatie 0113-250555
Deel deze woning

Kaart

Heeft u interesse?

Neem dan via onderstaand formulier contact op om een bezichtiging in te plannen.

Om op een woning te bieden, is het belangrijk dat u weet wat u kunt lenen. Wij kunnen u daarin adviseren. Laat gratis de waarde van uw huidige woning bepalen, ontvang een vrijblijvend hypotheekadvies en/of vraag een second opinion voor uw hypotheekadvies aan. Vink de gewenste aanvullende diensten aan in het formulier.

    *

    *

    *

    *

    Aanvullende opties



    AVG *