Op de begane grond van een kleinschalig appartementencomplex vind je dit goed onderhouden en verrassend leuke appartement met eigen tuin/ terras op het zuiden. Een ideale woning voor één of twee personen die comfortabel en centraal willen wonen. Het sanitair en de vloer- en wandafwerking verkeren in keurige staat. De keukeninrichting is gedateerd.
De woning is gelegen in de wijk De Goese Polder, op loopafstand van winkelcentrum De Spinne, met o.a. een bakker, supermarkt, drogist en snackbar. Ook het gezellige stadscentrum van Goes ligt dichtbij, net als de uitvalswegen richting de A58. Parkeren kan gratis in de directe omgeving en voor de fiets is er plek in de gezamenlijke berging.
Het complex wordt goed onderhouden door een actieve VvE. De maandelijkse bijdrage bedraagt ca. € 151,-. Recent zijn onder meer de galerijen en kozijnen geschilderd en zijn de buitenruimte met tuin en het dak vernieuwd, waardoor het geheel een verzorgde indruk maakt.
Er is een centrale entree met toegang tot de gezamenlijke fietsenberging en buitenruimte.
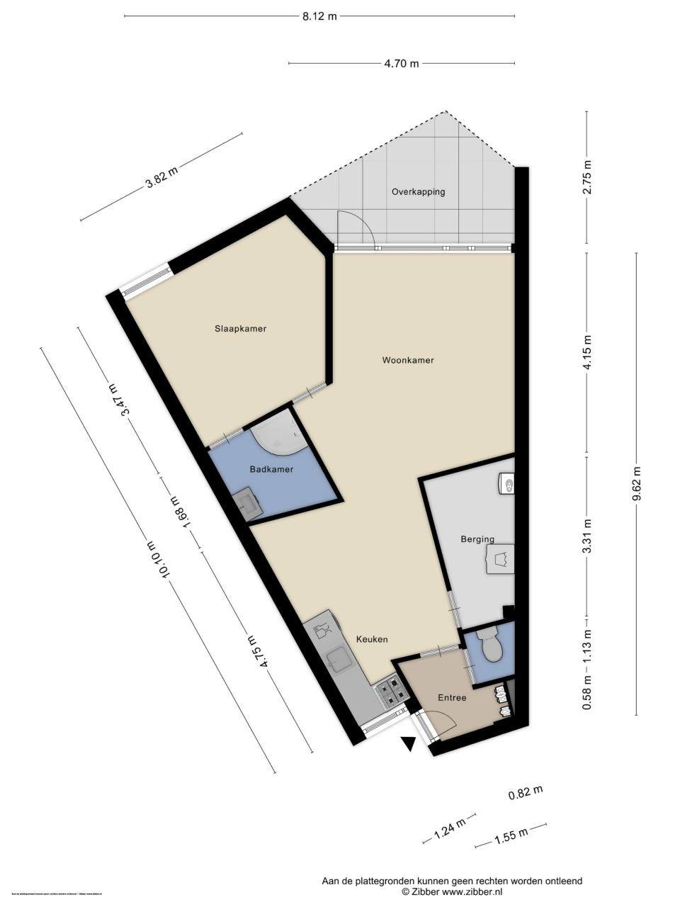
Indeling woning (begane grond):
Je komt binnen in de hal met meterkast en toilet. De keuken bevindt zich aan de voorzijde en is voorzien van een elektrische kookplaat en een (onderbouw) vaatwasser. Er is voldoende ruimte voor een gezellige eethoek. Vanuit de keuken bereik je de praktische bijkeuken/inpandige berging met cv-opstelling, wasmachineaansluiting en extra bergruimte.
De zithoek ligt aan de tuinzijde en is heerlijk licht door het grote raam. Via de tuindeur heb je toegang tot het terras (zuid), waar je zowel van de zon als van een schaduwplekje kunt genieten. De slaapkamer is toegankelijk via de woonkamer en grenst ook aan de tuinzijde. De badkamer - in een rustige, moderne kleurstelling- bereik je via de slaapkamer en is voorzien van een aparte douche, wastafel en handdoekradiator.
Zoek je een woning op een ideale locatie met alle voorzieningen binnen handbereik, dan zou dit best eens het ideale appartement voor jou kunnen zijn.
Benieuwd? Bel ons voor een bezichtiging. We leiden je graag rond.
Oplevering in overleg.
Vraagprijs € 217.500,- k.k.