Friesestraat 16 0ong

4471AE WOLPHAARTSDIJK Koopsom: € 355.000,- v.o.n.
108 m² oppervlakte

Omschrijving

Een unieke kans voor iemand met twee rechterhanden! Deze woning is als een blanco canvas die naar eigen wens is af te werken.
Vlakbij de kern van het dorp zal deze casco 2/1 kapwoning worden gerealiseerd. De bouwstijl past naadloos bij de woningen in dit dorp en staat op een goed perceel van ca. 279m².
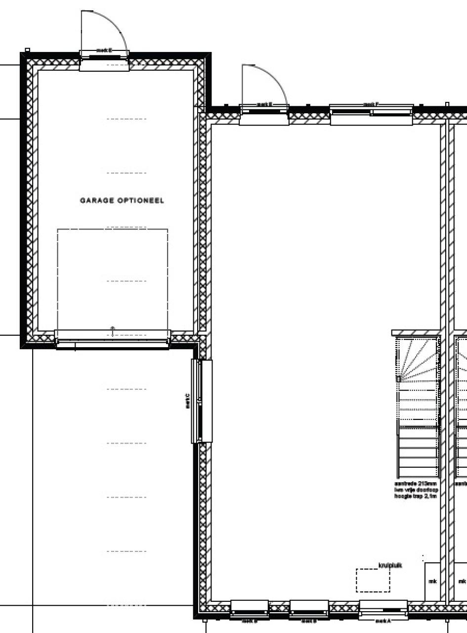
Er is ruimte voor het parkeren van twee auto's op eigen terrein en optioneel kan ook nog voor een garage gekozen worden. Daarnaast ligt het perceel nagenoeg op het zuiden en heeft de achtertuin dus een optimale bezonning.

Wolphaartsdijk is een gemoedelijk dorp op slechts 10 minuten rijden van Goes en op een steenworp afstand van het Veerse Meer. In het dorp zelf zijn diverse voorzieningen aanwezig als een supermarkt, basisschool en kinderopvang, kapper, fysio, huisartsenpraktijk met apotheek, rijwielshop, restaurants en diverse watersport gerelateerde bedrijven.

Binnen de vier muren kan de woning naar eigen inzicht ingedeeld worden. In de woning zijn dichte trappen aanwezig om de twee verdiepingen te bereiken.

Aansluitingen worden tot in de meterkast gebracht en kunnen van daaruit verder de woning in worden verwerkt, passend bij de gewenste indeling. De kalkzandsteen muren laten zich makkelijk bewerken om dit mogelijk te maken.

Installaties t.b.v. verwarming, warm water en ventilatie dienen nog te worden aangebracht.

De woning wordt uitgevoerd met kunststof kozijnen en voorzien van ventilatieroosters. Ook de buitendeuren en geveltimmerwerk worden in kunststof uitgevoerd.
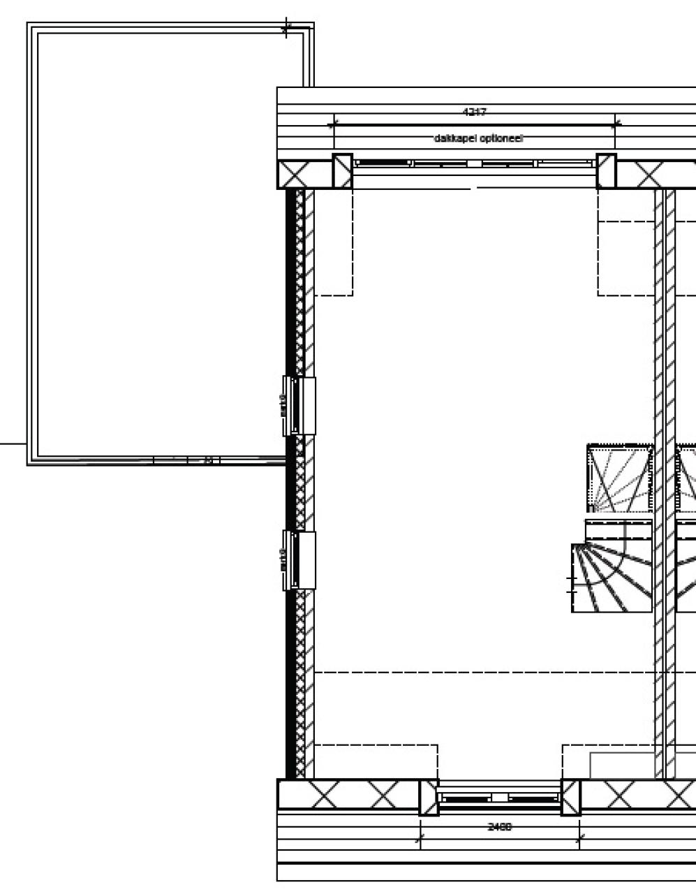
Op de eerste verdieping wordt aan de voorzijde een dakkapel voorzien en aan de achterzijde komen een tweetal dakramen.

In de presentatie zijn een aantal impressies opgenomen om inzicht te geven in een mogelijke indeling van de woning.

Lees de volledige omschrijving

Overdracht

Vraagprijs Koopsom: € 355.000,- v.o.n.
Status beschikbaar
Aanvaarding in overleg

Bouw

Type Woonhuis
Type woning 2-onder-1-kapwoning
Soort woning Eengezinswoning
Bouwjaar 2026
Onderhoud binnen Uitstekend
Onderhoud buiten Uitstekend
Dak Zadeldak
Dak materialen Pannen

Vrijblijvend gesprek met onze hypotheekadviseur?

Tuin

Tuin Achtertuin, voortuin, zijtuin
Tuin oppervlakte 279
Hoofd tuin Achtertuin
Tuin ligging Zuid

Woonhuis

Kamers 2
Woonopp. 108 m²
Inhoud 350 m³
Ligging Aan rustige weg

Locatie

Ligging Aan rustige weg

Energie

Isolatie Volledig geïsoleerd
Verwarming Geen verwarming
Warm water Geen

Garage

Garage Garage mogelijk

Berging

Type berging Vrijstaand hout

Benieuwd naar de waarde van uw woning?

Vraag nu een objectieve, deskundige waardebepaling aan.

Aanvragen
Meer informatie 0118-727000
Deel deze woning

Kaart

Heeft u interesse?

Neem dan via onderstaand formulier contact op om een bezichtiging in te plannen.

Om op een woning te bieden, is het belangrijk dat u weet wat u kunt lenen. Wij kunnen u daarin adviseren. Laat gratis de waarde van uw huidige woning bepalen, ontvang een vrijblijvend hypotheekadvies en/of vraag een second opinion voor uw hypotheekadvies aan. Vink de gewenste aanvullende diensten aan in het formulier.

    *
    *
    *
    *
    Aanvullende opties



    AVG *