Westelijke Kanaalweg 13

4424BE WEMELDINGE Vraagprijs: € 550.000,- k.k.
138 m² oppervlakte
1.070 m² perceel
3 slaapkamers

Omschrijving

Welkom aan de Westelijke Kanaalweg 13 in Wemeldinge!
Deze degelijk gebouwde vrijstaande semibungalow biedt een zee aan ruimte, comfort en mogelijkheden. Met een woonoppervlakte van circa 138 m², een inpandige dubbele garage van circa 56 m² en een vrijstaande loods van circa 125 m² is dit een bijzonder veelzijdig geheel. Of u nu op zoek bent naar een woning met slaap- en badkamer op de begane grond, ruimte voor een bedrijf aan huis, hobby's of gewoon veel leefruimte _ hier kan het allemaal.

De ligging is ideaal: aan een rustige straat onderaan de dijk, op loopafstand van de jachthaven en het strand van Wemeldinge. Geniet van de rust, het water en het dorpsleven, met alle voorzieningen binnen handbereik. Basisonderwijs, kinderopvang, winkels en gezellige horecagelegenheden zijn op korte afstand aanwezig, terwijl de stad Goes op slechts 10 minuten rijden ligt.

De woning is gebouwd in 1979 op een riant perceel van 1.070 m². Het geheel is degelijk onderhouden, al verdient de afwerking op sommige punten modernisering. De loods in de achtertuin behoeft renovatie, maar biedt enorm veel potentie. De woning beschikt over energielabel C.

Indeling

Begane grond
Ruime entree met meterkast en toilet. Aan de rechterzijde bevindt zich een slaapkamer (ca. 2,80 x 4,50 m) met een eigen badkamer en suite _ ook bereikbaar via de bijkeuken. Links van de hal ligt de lichte woonkamer met schuifpui naar het terras en aansluitend een praktische keuken. De bijkeuken biedt toegang tot de royale inpandige dubbele garage; ideaal voor opslag, werkruimte of het realiseren van extra woonruimte.

Eerste verdieping
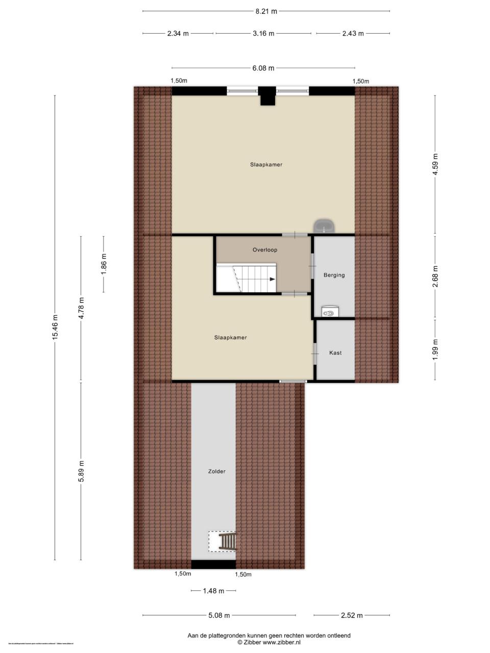
Via de vaste trap bereikt u de overloop met bergruimte en cv-opstelling. De grootste slaapkamer heeft een vloeroppervlak van maar liefst 27 m² (gemeten op 1,50 m-lijn) en kan eenvoudig worden gesplitst in twee kamers. De tweede slaapkamer (ca. 15 m²) is eveneens ruim en voorzien van een vaste kast.

Tuin
Rondom de woning ligt een heerlijk ruime tuin met de hele dag zon. De brede oprit biedt plaats aan meerdere auto's en ook bij de loods is voldoende parkeerruimte aanwezig. Direct achter de woning ligt een groot terras, perfect voor lange zomeravonden. Achter de loods strekt de tuin zich nog circa 50 meter uit _ een fantastisch stuk grond met volop privacy, ideaal voor liefhebbers van groen en buitenleven.

Loods
De vrijstaande loods van circa 18 x 7 meter beschikt over elektriciteit en biedt tal van gebruiksmogelijkheden. Ideaal voor de doe-het-zelver, autoliefhebber of iemand met een kleinschalig bedrijf aan huis.

Omgeving
Wemeldinge is een geliefd dorp in de gemeente Kapelle, direct gelegen aan de Oosterschelde. Met een strand, een grote jachthaven en volop mogelijkheden voor watersport, fietsen, wandelen en duiken is dit een heerlijke plek om te wonen en recreëren. Alle dagelijkse voorzieningen zijn aanwezig, terwijl de stad Goes met haar uitgebreide winkel- en horeca-aanbod binnen 10 minuten te bereiken is.
Bent u op zoek naar een vrijstaande woning met veel ruimte, rust en mogelijkheden op een prachtige locatie vlak bij het water? Dan is dit huis zeker een bezichtiging waard!


Oplevering: in overleg

Lees de volledige omschrijving

Overdracht

Vraagprijs Vraagprijs: € 550.000,- k.k.
Status beschikbaar
Aanvaarding in overleg

Bouw

Type Woonhuis
Type woning Halfvrijstaande woning
Soort woning Eengezinswoning
Bouwjaar 1979
Onderhoud binnen Redelijk
Onderhoud buiten Redelijk
Dak Zadeldak
Dak materialen Pannen

Vrijblijvend gesprek met onze hypotheekadviseur?

Tuin

Tuin Achtertuin, voortuin, zijtuin
Tuin oppervlakte 1070
Hoofd tuin Achtertuin
Hoofd tuin opp. 1.100 m²
Tuin ligging Zuid, west

Woonhuis

Kamers 4
Slaapkamers 3
Woonopp. 138 m²
Inhoud 720 m³
Perceelopp. 1.070 m²
Woonkamer Woonkamer
Keuken Dichte keuken
Ligging Aan rustige weg, beschutte ligging, in centrum
Voorzieningen Tv kabel, berging, overloop, bijkeuken, toilet, hal

Locatie

Ligging Aan rustige weg, beschutte ligging, in centrum

Energie

Energielabel C
Isolatie Dakisolatie, muurisolatie
Verwarming C.v.-ketel
Warm water C.v.-ketel
Type c. v. Nefit
Bouwjaar c. v. 2024

Garage

Garage Inpandig
Garage capactiteit 1

Berging

Type berging Vrijstaand kunststof
Berging voorzieningen Voorzien van elektra

Benieuwd naar de waarde van uw woning?

Vraag nu een objectieve, deskundige waardebepaling aan.

Aanvragen
Meer informatie 0113-250555
Deel deze woning

Kaart

Heeft u interesse?

Neem dan via onderstaand formulier contact op om een bezichtiging in te plannen.

Om op een woning te bieden, is het belangrijk dat u weet wat u kunt lenen. Wij kunnen u daarin adviseren. Laat gratis de waarde van uw huidige woning bepalen, ontvang een vrijblijvend hypotheekadvies en/of vraag een second opinion voor uw hypotheekadvies aan. Vink de gewenste aanvullende diensten aan in het formulier.

    *

    *

    *

    *

    Aanvullende opties



    AVG *