De Blikken / 2-1-kap levensloopbestendig BWNR. 20

4453 BR 's-Heerenhoek € 375.000,- v.o.n.
107 m2 wonen
320 m2 perceel
3 slaapkamers

Omschrijving

Aan de rand van ‘s-Heerenhoek wordt het nieuwbouwplan De Blikken ontwikkelt. Inmiddels zijn de woningen uit fase 1 verkocht en in aanbouw. Deze woningen worden in fase 2 gerealiseerd.

Over de combinatie van de woningen is goed nagedacht; voor elk wat wils. Gelegen in het dorp maar met de ontsluiting richting de A58 en de Westerscheldetunnel om de hoek.

Aan de Boonmanstraat komen drie compacte 2-1-kapwoningen die veel ruimer zijn dan de voorgevel doet vermoeden!
In basis hebben deze woningen een slaap- en badkamer op de begane grond en zijn daarmee ook levensloopbestendig. Natuurlijk kan de slaapkamer beneden ook gebruikt worden als kantoor of misschien trekt u deze ruimte liever bij de woonkamer voor een riante leefruimte!

Deze leuke 2-1-kap woningen met volledig ingedeelde bovenverdieping staan op een perceel die mogelijkheid biedt tot parkeren op eigen terrein. Bovendien zijn de woningen voorzien van een slaap- en badkamer op de begane grond, wat de woning tevens levensloopbestendig maakt.

Via de voorkant van de woning komt u de hal binnen. In de hal bevindt zich de meterkast, trapkast met aansluiting voor de wasmachine en de warmtepomp, toegang tot het toilet en de trap naar de eerste verdieping. Vanuit hier loopt u de sfeervolle woonkamer met open keuken binnen. De keuken, die in een hoekopstelling is bedacht, is aan de voorzijde van de woning gesitueerd. De zithoek bevindt zich aan de achterkant van de woning en geeft u door de grote raampartij een prachtig zicht op en toegang tot uw tuin. Vanuit de woonkamer heeft u toegang tot de slaapkamer en de aangrenzende badkamer voorzien van een toilet, wastafelmeubel en inloopdouche. Maar de slaapkamer beneden kan ook gebruikt worden als kantoor of misschien trekt u deze ruimte liever bij de woonkamer voor een riante leefruimte!
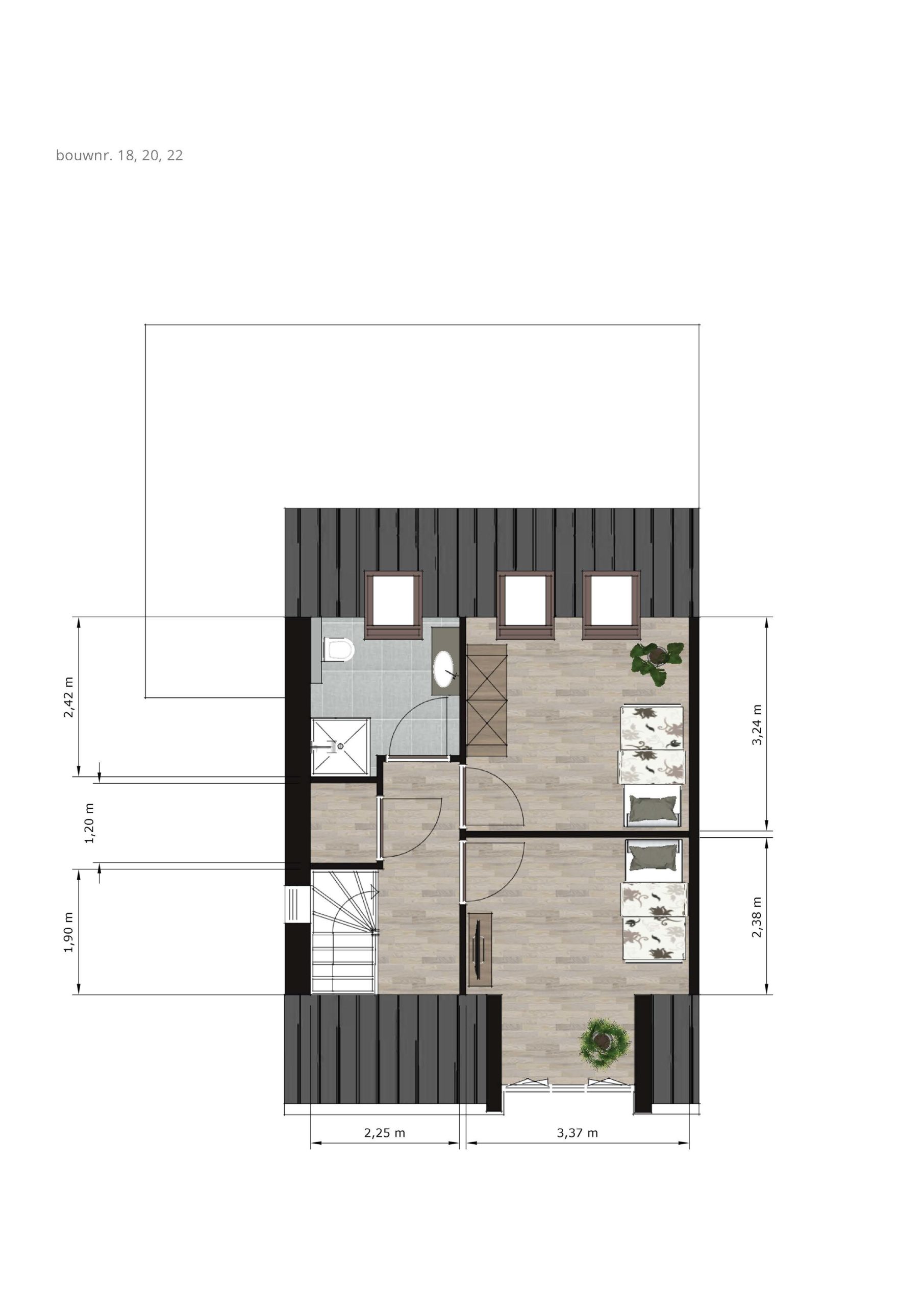
Als we weer terug gaan naar de hal treft u daar de trapopgang naar de eerste verdieping. Vanuit de overloop heeft u toegang tot 2 slaapkamers en de tweede badkamer die ook voorzien wordt van tegelwerk en een toilet, wastafelmeubel en een inloopdouche.

De achtertuin is via de zijkant van de woning te bereiken. In de tuin word een berging geplaatst voorzien van elektra.

Lees de volledige omschrijving

Overdracht

Vraagprijs € 375.000,- v.o.n.
Status Verkocht

Woning

Type 2-onder-1-kapwoning

Vrijblijvend gesprek met onze hypotheekadviseur?

Afmetingen

Perceeloppervlak 320 m2
Woonoppervlak 107 m2
Inhoud 446 m3

Ligging

Ligging aan rustige weg, in centrum

Tuin

Aanwezige tuin(en) achtertuin, voortuin, zijtuin
Oriëntatie hoofdtuin Noord

Parkeren

Garage geen garage

Verwarming

Verwarming vloerverwarming geheel

Algemeen

Aantal woonlagen in de woning 2
Totaal aantal kamers 4
Aantal slaapkamers 3
Totaal aantal WC’s 3

Badkamer

Aantal badkamers 1

Bergruimte

Soort bergruimte vrijstaand hout

Ga voorbereid op pad

Van waardebepaling tot hypotheekadvies, wij begeleiden u in het hele proces. Alle expertise onder één dak, dat is wel zo handig!

Meer informatie 0113 - 250555
Deel deze woning

Kaart

Meer informatie?

Neem vrijblijvend contact op via onderstaand formulier.

    *

    *

    *

    *

    Aanvullende opties



    AVG *