Carterlaan 36

4463WX GOES Verkocht onder voorbehoud
108 m² oppervlakte
136 m² perceel
4 slaapkamers

Omschrijving

Deze ruime hoekwoning met vier slaapkamers en een garage is een buitenkans voor starters én doorstromers. Het huis staat op een mooi hoekperceel en heeft een speelse indeling met een centraal gelegen keuken en een fijne tuin. Ben je op zoek naar een woning met garage waar je niet veel aan hoeft te doen? Plan dan snel een bezichtiging!

De woning is grotendeels voorzien van rolluiken. Op de begane grond ligt een eigentijdse pvc-vloer met vloerverwarming. Het huis beschikt volledig over dubbel glas en zowel het dak als de muren zijn geïsoleerd. Dit resulteert in energielabel C.

De Goese Polder is een groene en kindvriendelijke wijk met diverse speelvelden en plantsoenen, waardoor het een geliefde woonomgeving is voor gezinnen. Op korte afstand vind je een winkelcentrum met onder meer een supermarkt, bakker en drogist. Het gezellige centrum van Goes ligt op circa vijf minuten fietsen.

Indeling
Begane grond
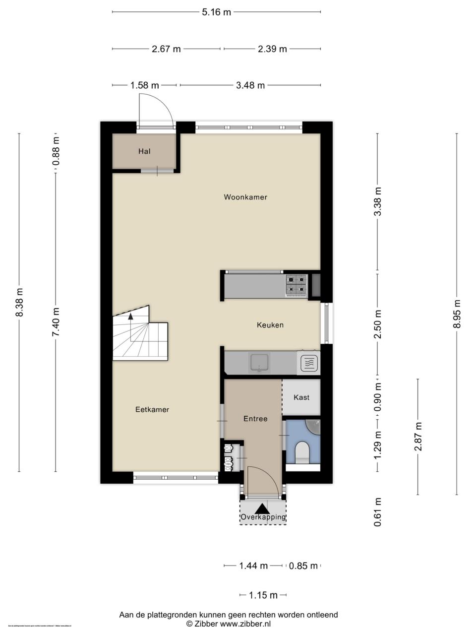
Entree met hal, meterkast, toilet en toegang tot de woonkamer. Doordat de keuken centraal is gesitueerd, ontstaat er een lichte tuingerichte woonkamer aan de achterzijde en een gezellige eetkamer aan de voorzijde. De keuken heeft een praktische indeling met veel kast- en werkruimte en is voorzien van een gaskookplaat, afzuigkap, combimagnetron, vaatwasser en koelkast. Dankzij het zijraam is er extra lichtinval. Via een portaal in de woonkamer is de achtertuin bereikbaar.

Eerste verdieping
Overloop met toegang tot drie slaapkamers en de badkamer. De badkamer is uitgerust met een douche, ligbad, toilet en wastafelmeubel.
Afmetingen slaapkamers:
_ Slaapkamer 1: ca. 5,16 m x 2,68 m
_ Slaapkamer 2: ca. 2,55 m x 3,40 m
_ Slaapkamer 3: ca. 2,50 m x 3,35 m

Tweede verdieping
Via een vaste trap bereik je de tweede verdieping. Hier bevindt zich een royale vierde slaapkamer met vaste kast, waarin de cv-opstelling en wasmachineaansluiting zijn ondergebracht.

Tuin
De achtertuin is georiënteerd op het oosten. Doordat er aan de zuidzijde geen bebouwing staat, kun je hier het grootste deel van de dag van de zon genieten. De tuin is volledig bestraat en omsloten door schuttingen.

Achterin de tuin staat de garage, voorzien van een elektrische deur.

Oplevering: in onderling overleg.

Vraagprijs: € 315.000,- k.k.

Lees de volledige omschrijving

Overdracht

Vraagprijs Verkocht onder voorbehoud
Status Verkocht onder voorbehoud
Aanvaarding in overleg

Bouw

Type Woonhuis
Type woning Hoekwoning
Soort woning Eengezinswoning
Bouwjaar 1979
Onderhoud binnen Redelijk
Onderhoud buiten Redelijk
Dak Zadeldak
Dak materialen Pannen

Vrijblijvend gesprek met onze hypotheekadviseur?

Tuin

Tuin Achtertuin
Tuin oppervlakte 136
Hoofd tuin Achtertuin
Hoofd tuin opp. 45 m²
Tuin ligging Oost, zuid

Woonhuis

Kamers 5
Slaapkamers 4
Woonopp. 108 m²
Inhoud 382 m³
Perceelopp. 136 m²
Keuken Half open keuken
Ligging Aan rustige weg, beschutte ligging, in woonwijk
Voorzieningen Rolluiken, berging, overloop, overloop, toilet, hal

Locatie

Ligging Aan rustige weg, beschutte ligging, in woonwijk

Energie

Energielabel C
Isolatie Dakisolatie, dubbel glas, muurisolatie
Verwarming C.v.-ketel, vloerverwarming gedeeltelijk
Warm water C.v.-ketel
Type c. v. Nefit
Bouwjaar c. v. 2009

Garage

Garage Vrijstaand steen
Garage capactiteit 1

Benieuwd naar de waarde van uw woning?

Vraag nu een objectieve, deskundige waardebepaling aan.

Aanvragen
Meer informatie 0113-250555
Deel deze woning

Kaart

Heeft u interesse?

Neem dan via onderstaand formulier contact op om een bezichtiging in te plannen.

Om op een woning te bieden, is het belangrijk dat u weet wat u kunt lenen. Wij kunnen u daarin adviseren. Laat gratis de waarde van uw huidige woning bepalen, ontvang een vrijblijvend hypotheekadvies en/of vraag een second opinion voor uw hypotheekadvies aan. Vink de gewenste aanvullende diensten aan in het formulier.

    *

    *

    *

    *

    Aanvullende opties



    AVG *