De Spinne 22

4463CW GOES Verkocht onder voorbehoud
58 m² oppervlakte
1 slaapkamers

Omschrijving

De Spinne 22 Goes

Op de begane grond van een kleinschalig appartementencomplex vind je dit goed onderhouden en verrassend leuke appartement met eigen tuin/ terras op het zuiden. Een ideale woning voor één of twee personen die comfortabel en centraal willen wonen. Het sanitair en de vloer- en wandafwerking verkeren in keurige staat. De badkamer is functioneel maar gedateerd.

De woning is gelegen in de wijk De Goese Polder, op loopafstand van winkelcentrum De Spinne, met o.a. een bakker, supermarkt, drogist en snackbar. Ook het gezellige stadscentrum van Goes ligt dichtbij, net als de uitvalswegen richting de A58. Parkeren kan gratis in de directe omgeving en voor de fiets is er plek in de gezamenlijke berging.

Het complex wordt goed onderhouden door een actieve VvE. De maandelijkse bijdrage bedraagt ca. € 151,-. Recent zijn onder meer de galerijen en kozijnen geschilderd en zijn de buitenruimte met tuin en het dak vernieuwd, waardoor het geheel een verzorgde indruk maakt.

Er is een centrale entree met toegang tot de gezamenlijke fietsenberging en buitenruimte.

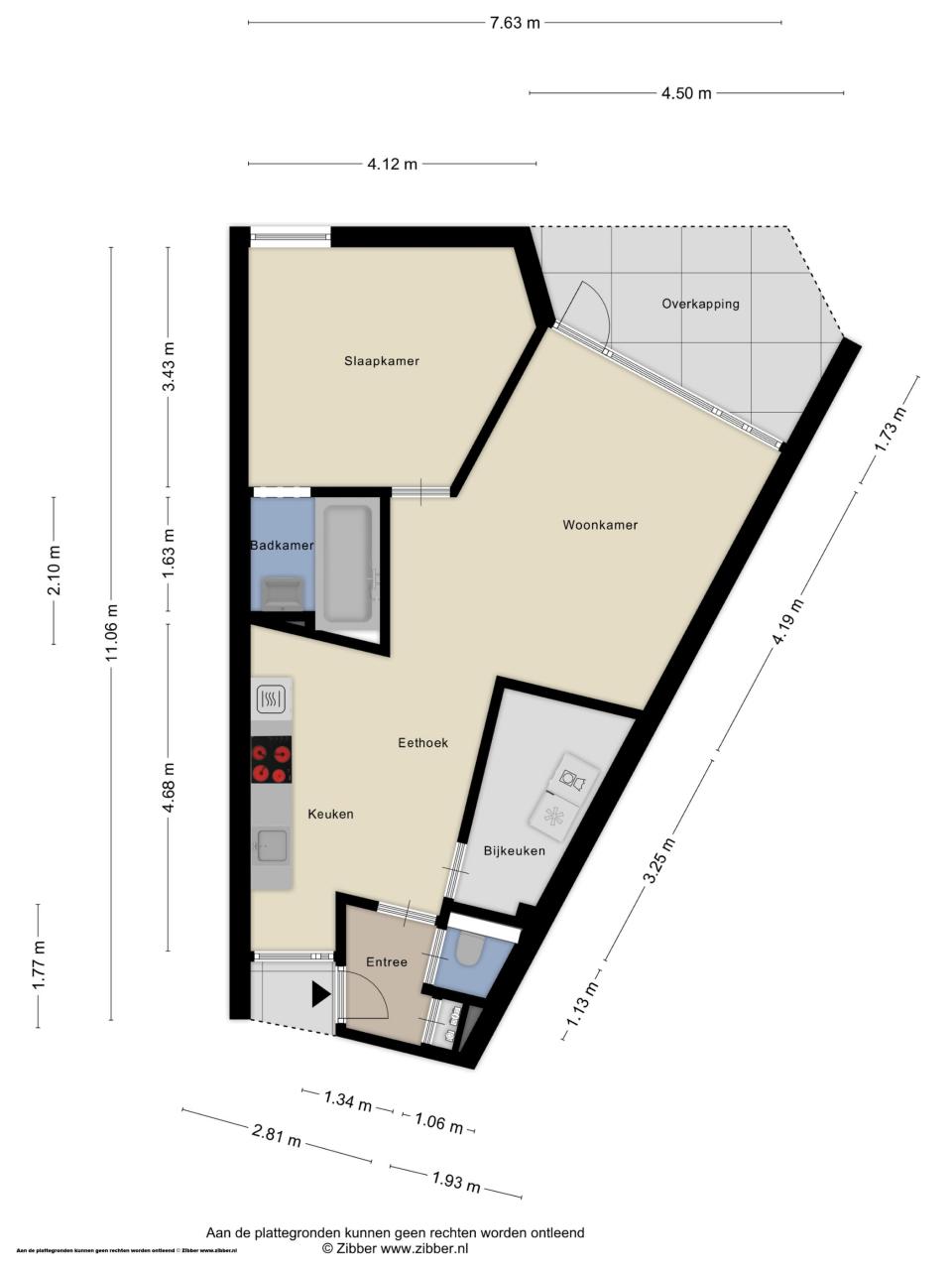
Indeling woning (begane grond):
Je komt binnen in de hal met meterkast en toilet. De moderne keuken bevindt zich aan de voorzijde en is uitgevoerd in een tijdloos design. De keuken is voorzien van diverse inbouwapparatuur, waaronder een inductiekookplaat, afzuigkap, koelkast, combi-magnetron en vaatwasser. Er is voldoende ruimte voor een compacte eethoek. Aansluitend is er een praktische bijkeuken/inpandige berging met cv-opstelling, wasmachineaansluiting en extra bergruimte.

De zithoek ligt aan de tuinzijde en is heerlijk licht door het grote raam. Via de tuindeur heb je toegang tot het terras (zuid), waar je zowel van de zon als van een schaduwplekje kunt genieten. De slaapkamer is toegankelijk via de woonkamer en grenst ook aan de tuinzijde. De badkamer bereik je via de slaapkamer en is voorzien van een ligbad met douche, wastafelmeubel en spiegelkast.

Zoek je een woning op een ideale locatie met alle voorzieningen binnen handbereik, dan zou dit best eens het ideale appartement voor jou kunnen zijn.

Benieuwd? Bel ons voor een bezichtiging. We leiden je graag rond.

Oplevering in overleg.

Vraagprijs € 219.000,- k.k.

Lees de volledige omschrijving

Overdracht

Vraagprijs Verkocht onder voorbehoud
Status Verkocht onder voorbehoud
Aanvaarding in overleg

Bouw

Type Appartement
Soort woning Benedenwoning
Kenmerk Appartement
Bouwjaar 1979
Onderhoud binnen Goed
Onderhoud buiten Goed
Dak Plat dak

Vrijblijvend gesprek met onze hypotheekadviseur?

Tuin

Tuin Achtertuin
Tuin oppervlakte 11
Hoofd tuin Achtertuin
Tuin ligging Zuid

Appartement

Kamers 2
Slaapkamers 1
Woonopp. 58 m²
Inhoud 193 m³
Woonkamer Woonkamer
Keuken Open keuken, woonkeuken
Ligging Aan rustige weg, beschutte ligging, in woonwijk, vrij uitzicht
Voorzieningen Glasvezel kabel, bijkeuken, toilet, hal

Locatie

Ligging Aan rustige weg, beschutte ligging, in woonwijk, vrij uitzicht

Energie

Energielabel C
Isolatie Dakisolatie, dubbel glas, muurisolatie, vloerisolatie, volledig geïsoleerd
Verwarming C.v.-ketel
Warm water C.v.-ketel
Type c. v. Remeha
Bouwjaar c. v. 2012

Garage

Garage Geen garage

Benieuwd naar de waarde van uw woning?

Vraag nu een objectieve, deskundige waardebepaling aan.

Aanvragen
Meer informatie 0113-250555
Deel deze woning

Kaart

Heeft u interesse?

Neem dan via onderstaand formulier contact op om een bezichtiging in te plannen.

Om op een woning te bieden, is het belangrijk dat u weet wat u kunt lenen. Wij kunnen u daarin adviseren. Laat gratis de waarde van uw huidige woning bepalen, ontvang een vrijblijvend hypotheekadvies en/of vraag een second opinion voor uw hypotheekadvies aan. Vink de gewenste aanvullende diensten aan in het formulier.

    *
    *
    *
    *
    Aanvullende opties



    AVG *