Heer Wissestraat 13

4472AP 'S-HEER HENDRIKSKINDEREN Verkocht onder voorbehoud
82 m² oppervlakte
197 m² perceel
3 slaapkamers

Omschrijving

Ben je op zoek naar een woning met ruimte én volop mogelijkheden om deze geheel naar eigen smaak te moderniseren? Deze twee-onder-een-kapwoning uit 1954, gelegen in het geliefde en rustige 's-Heer Hendrikskinderen, biedt een uitstekende basis voor starters of jonge gezinnen. Met drie ruime slaapkamers, een lichte woonkamer, een dakterras en een royale tuin is dit een huis met potentie.

Ligging
De woning is gelegen in een rustige en kindvriendelijke woonomgeving in het populaire dorp 's-Heer Hendrikskinderen, op korte afstand van Goes. Hier woon je in alle rust, terwijl voorzieningen zoals winkels, scholen en sportfaciliteiten binnen handbereik liggen. Een ideale combinatie van dorps wonen met de stad dichtbij.

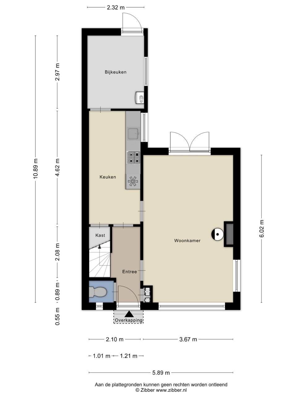
Indeling

Begane grond
Via de entree kom je binnen in de hal met toilet en trapopgang naar de verdieping. Vanuit de hal bereik je de lichte doorzon woonkamer, waar de grote raampartijen zorgen voor een prettige lichtinval. Vanuit de woonkamer heb je direct toegang tot de tuin, wat zorgt voor een fijne verbinding tussen binnen en buiten.
Aansluitend bevindt zich de separate keuken, die eveneens licht is en beschikt over voldoende ruimte. Vanuit de keuken is er toegang tot een royale bijkeuken, wat extra bergruimte en praktische mogelijkheden biedt.

Eerste verdieping
Op de eerste verdieping kom je uit op de overloop, die toegang biedt tot drie slaapkamers en de badkamer. Twee slaapkamers zijn royaal en beschikken over grote raampartijen, wat zorgt voor veel licht en ruimte. De derde slaapkamer is uitstekend geschikt als werk- of studeerkamer en biedt toegang tot een (mogelijk te realiseren) dakterras.
De badkamer is eenvoudig uitgevoerd, maar biedt volop mogelijkheden om naar eigen wens te moderniseren.

Zolder
Vanaf de overloop is er met een vlizotrap toegang tot een praktische vliering, ideaal als bergruimte.

Tuin
De woning beschikt over een ruime en verzorgde achtertuin, die deels is bestraat en deels is ingericht met gazon. Achterin de tuin bevindt zich een tuinhuis en een berging, waardoor er voldoende ruimte is voor opslag en het creëren van een fijne buitenplek. Een heerlijke tuin waar je in alle rust kunt genieten.

Algemeen
-Bouwjaar: 1954
-Woonoppervlakte: ca. 82 m²
-Bruto vloeroppervlakte: ca. 110 m²
-Drie slaapkamers
-Dakterras mogelijk
-Ruime tuin met berging en tuinhuis
-Ideale woning voor starters met potentie

Kortom: een fijne twee-onder-een-kapwoning op een rustige en gewilde locatie, met volop mogelijkheden om hier jouw eigen thuis van te maken. Nieuwsgierig geworden? Neem dan contact met ons op voor een bezichtiging!

Lees de volledige omschrijving

Overdracht

Vraagprijs Verkocht onder voorbehoud
Status Verkocht onder voorbehoud
Aanvaarding in overleg

Bouw

Type Woonhuis
Type woning 2-onder-1-kapwoning
Soort woning Eengezinswoning
Bouwjaar 1954
Onderhoud binnen Redelijk
Onderhoud buiten Redelijk
Dak Zadeldak
Dak materialen Pannen

Vrijblijvend gesprek met onze hypotheekadviseur?

Tuin

Tuin Achtertuin, voortuin
Tuin oppervlakte 197
Hoofd tuin Achtertuin
Hoofd tuin opp. 80 m²
Tuin ligging Noord

Woonhuis

Kamers 4
Slaapkamers 3
Woonopp. 82 m²
Inhoud 290 m³
Perceelopp. 197 m²
Woonkamer Woonkamer
Keuken Dichte keuken
Ligging Aan rustige weg, beschutte ligging, in woonwijk
Voorzieningen Tv kabel, balkon, overloop, bijkeuken, toilet, hal

Locatie

Ligging Aan rustige weg, beschutte ligging, in woonwijk

Energie

Energielabel G
Isolatie Gedeeltelijk dubbel glas
Verwarming C.v.-ketel
Warm water C.v.-ketel
Cv ketel Nefit
Cv ketel bouwjaar 2005

Garage

Garage Geen garage

Berging

Berging type Vrijstaand steen
Berging voorzieningen Voorzien van elektra

Benieuwd naar de waarde van uw woning?

Vraag nu een objectieve, deskundige waardebepaling aan.

Aanvragen
Meer informatie 0113-250555
Deel deze woning

Kaart

Heeft u interesse?

Neem dan via onderstaand formulier contact op om een bezichtiging in te plannen.

Om op een woning te bieden, is het belangrijk dat u weet wat u kunt lenen. Wij kunnen u daarin adviseren. Laat gratis de waarde van uw huidige woning bepalen, ontvang een vrijblijvend hypotheekadvies en/of vraag een second opinion voor uw hypotheekadvies aan. Vink de gewenste aanvullende diensten aan in het formulier.

    *

    *

    *

    *

    Aanvullende opties



    AVG *