Joannes Antonides van der Goeskade 2004

4461BH GOES Vraagprijs: € 400.000,- k.k.
78 m² oppervlakte
2 slaapkamers

Omschrijving

Dit fijne driekamerappartement met twee balkons is gelegen op de derde en tevens hoogste verdieping en biedt enerzijds uitzicht over de daken van de stad en anderzijds zicht op het kanaal richting Wilhelminadorp en verder. Het appartement is bijzonder geschikt voor senioren, aangezien de lift zonder treden bereikbaar is. In de onderbouw bevinden zich de eigen parkeerplaats en berging. Via de centrale hal op de eerste woonlaag bereikt u met de lift of de trap het appartement op de topetage.

De ligging is uitstekend. Supermarkten zoals Aldi en Albert Heijn bevinden zich op loopafstand en ook het historische stadscentrum met de gezellige markt is eenvoudig lopend te bereiken. Alle dagelijkse voorzieningen zijn hier binnen handbereik. Ondanks de centrale ligging heerst in het appartement een rustige sfeer. Aan de achterzijde, bij de woonkamer, kijkt u fraai uit over het water, waar in de zomermaanden een levendig schouwspel van pleziervaartuigen richting de stadshaven voorbijtrekt.

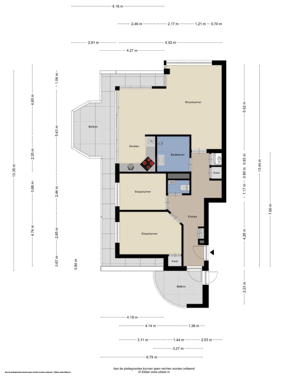
Indeling

Op de begane grond bevindt zich het gemeenschappelijke voorportaal met videofooninstallatie en brievenbussen. Vanuit hier zijn zowel het appartement als de berging en parkeerplaats bereikbaar via de lift of trap.

Achter de eigen voordeur bevindt zich de hal met meterkast en toilet. Vanuit de hal is tevens het balkon aan de voorzijde toegankelijk. De woonkamer is opvallend licht en biedt een vrij uitzicht. Via de schuifpui aan de zijkant is het tweede balkon bereikbaar, dat in directe verbinding staat met de woonkamer en de keuken. De halfopen keuken is netjes en functioneel uitgevoerd en voorzien van een hoekopstelling met inductiekookplaat, combimagnetron, recirculatie-afzuigkap en vaatwasser.

Het appartement beschikt over twee slaapkamers, een keurige badkamer, een apart toilet, een garderobenis en praktische kastruimtes voor was- en droogapparatuur en de cv-installatie. De badkamer is voorzien van een fraai wastafelmeubel met spiegel, een designradiator en een royale inloopdouche met hardglazen wand.

In het souterrain bevindt zich een berging van circa 5 m². Bij het appartement hoort tevens een eigen overdekte parkeerplaats onder het complex, welke uitsluitend toegankelijk is voor bewoners.

De Vereniging van Eigenaars is actief en financieel gezond. De maandelijkse bijdrage bedraagt circa € 275,-.

Bent u op zoek naar een goed onderhouden, levensloopbestendig appartement op loopafstand van het centrum? Dan is dit appartement zeker een bezichtiging waard.

Oplevering: in overleg

Lees de volledige omschrijving

Overdracht

Vraagprijs Vraagprijs: € 400.000,- k.k.
Status beschikbaar
Aanvaarding in overleg

Bouw

Type Appartement
Soort woning Penthouse
Kenmerk Appartement
Bouwjaar 1992
Onderhoud binnen Goed
Onderhoud buiten Goed
Dak Plat dak
Dak materialen Bitumineuze dakbedekking

Vrijblijvend gesprek met onze hypotheekadviseur?

Appartement

Kamers 3
Slaapkamers 2
Woonopp. 78 m²
Inhoud 258 m³
Woonkamer Woonkamer
Keuken Half open keuken
Ligging Aan water, beschutte ligging, in centrum, vrij uitzicht
Voorzieningen Mechanische ventilatie, glasvezel kabel, balkon, toilet, hal, wasruimte

Locatie

Ligging Aan water, beschutte ligging, in centrum, vrij uitzicht

Energie

Energielabel C
Isolatie Dakisolatie, dubbel glas, muurisolatie, vloerisolatie, volledig geïsoleerd
Verwarming C.v.-ketel
Warm water C.v.-ketel
Type c. v. Nefit
Bouwjaar c. v. 2005

Garage

Garage Parkeerplaats

Berging

Type berging Inpandig

Benieuwd naar de waarde van uw woning?

Vraag nu een objectieve, deskundige waardebepaling aan.

Aanvragen
Meer informatie 0113-250555
Deel deze woning

Kaart

Heeft u interesse?

Neem dan via onderstaand formulier contact op om een bezichtiging in te plannen.

Om op een woning te bieden, is het belangrijk dat u weet wat u kunt lenen. Wij kunnen u daarin adviseren. Laat gratis de waarde van uw huidige woning bepalen, ontvang een vrijblijvend hypotheekadvies en/of vraag een second opinion voor uw hypotheekadvies aan. Vink de gewenste aanvullende diensten aan in het formulier.

    *

    *

    *

    *

    Aanvullende opties



    AVG *