Valeriaanstraat 18

4451LK HEINKENSZAND Verkocht
140 m² oppervlakte
308 m² perceel
3 slaapkamers

Omschrijving

Deze royale, twee-onder-één kapwoning staat op een goede locatie in de populaire wijk "Over de dijk" te Heinkenszand. Het huis beschikt o.a. over 4 slaapkamers, een lichte tuingerichte living, een royale eetkamer, een inpandige garage met grote oprit en een heerlijke tuin. De afwerking is helemaal van deze tijd. Kortom een fijn gezinshuis op een prima plek.

Het huis is in 2003 gebouwd en is uitstekend geïsoleerd. Het energielabel is A. Er zijn 18 zonnepanelen en op de begane grond is deels vloerverwarming aanwezig. De woning is instapklaar.

Het dorp Heinkenszand biedt vele voorzieningen zoals een keur aan winkels, bakkerijen, supermarkt, diverse basisscholen, twee huisartsenpraktijken, kappers en diverse sportclubs en verenigingen. Binnen 10 autominuten bent u in Goes met een keur aan sportclubs, cultuur, restaurants en middelbare scholen. Uitvalswegen zoals de A58 zijn nabij gelegen. Binnen 60 autominuten bent u bijvoorbeeld in Breda, Rotterdam, Antwerpen of Brussel.

Indeling
Begane grond:
De ruime hal is een mooie binnenkomer. Hier vinden we de meterkast het toilet en de trap. De garage is vanuit de hal toegankelijk. Het huis heeft een speelse indeling. De keuken staat in het midden zodat er aan de achterkant een lichte tuingerichte living is met openslaande deuren naar de tuin. Aan de voorkant is een eetkamer waar voldoende ruimte is voor een grote eethoek. Je kunt hier met gemak een 8 persoons eettafel kwijt. Beide kamers zijn zowel vanuit de hal als vanuit de keuken toegankelijk.
De keuken is in 2021 geplaatst en heeft een luxueuze uitstraling met aan de ene kant een grote kastenwand en aan de andere kant een lang aanrechtblad met daaronder kastruimte.
Je beschikt hier over: een inductiekookplaat met geïntegreerde afzuiging, oven, koelkast, vriezer, afwasmachine, kokend waterkraan en composiet werkblad

1e verdieping:
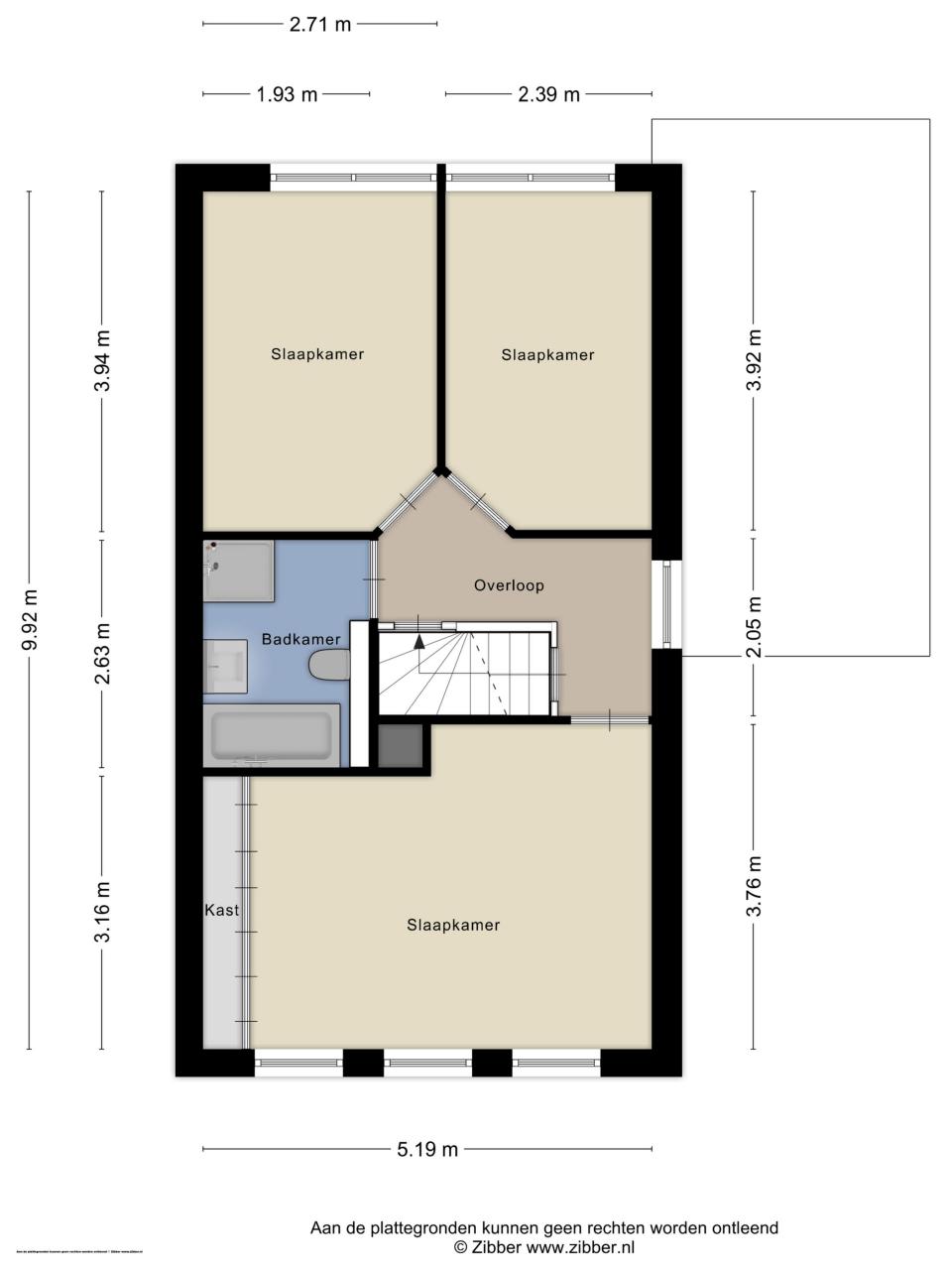
Op de 1e etage is een ruime overloop. De hoofdslaapkamer is aan de voorkant gesitueerd. Deze kamer is met ca. 18 m2 zeer royaal. Er is een vaste kastenwand en airconditioning. De badkamer is in 2020 gerealiseerd en heeft een eigentijdse uitstraling met fraai tegelwerk, een ligbad wastafelmeubel, toilet, en inloopdouche.

2e verdieping:
Via de vaste trap komen we in de grote multifunctionele ruimte met cv-opstelling en wasmachine aansluiting. Er is een deur naar het heerlijke dakterras met avondzon. De zolderverdieping biedt veel bergruimte met een diepe kastenwand en een vide. Momenteel wordt deze ruimte gebruikt als fitnessruimte en thuiswerkplek. Er kunnen relatief eenvoudig volwaardige slaapkamers worden gerealiseerd.

Tuin:
De achtertuin is gelegen op het noordoosten en biedt een prettige bezonning gedurende de dag. Via de vrije achterom bereikt u eenvoudig de straat. Achterin de tuin staat een overkapping met verlichting, ideaal om ook in de avonduren buiten te zitten.

De garage beschikt over een splinternieuwe geïsoleerde dubbele deur. Voor de garage is een royale oprit waar 2 auto's kunnen staan.

Nieuwsgierig geworden naar hoe deze woning er in het echt uitziet? Neem dan contact met ons op voor een bezichtiging.

Oplevering in overleg.

Vraagprijs: € 500.000,- k.k.

Lees de volledige omschrijving

Overdracht

Status Verkocht
Aanvaarding in overleg

Bouw

Type Woonhuis
Type woning 2-onder-1-kapwoning
Soort woning Eengezinswoning
Bouwjaar 2003
Onderhoud binnen Goed
Onderhoud buiten Goed
Dak Lessenaardak
Dak materialen Pannen

Vrijblijvend gesprek met onze hypotheekadviseur?

Tuin

Tuin Achtertuin, voortuin
Tuin oppervlakte 308
Hoofd tuin Achtertuin
Hoofd tuin opp. 143 m²

Woonhuis

Kamers 4
Slaapkamers 3
Woonopp. 140 m²
Inhoud 551 m³
Perceelopp. 308 m²
Keuken Open keuken
Ligging Aan rustige weg, beschutte ligging, in woonwijk
Voorzieningen Mechanische ventilatie, rolluiken, zonnepanelen, overloop, overloop, toilet

Locatie

Ligging Aan rustige weg, beschutte ligging, in woonwijk

Energie

Energielabel A
Isolatie Dakisolatie, dubbel glas, muurisolatie, vloerisolatie, volledig geïsoleerd
Verwarming C.v.-ketel, vloerverwarming gedeeltelijk
Warm water C.v.-ketel
Cv ketel Remeha
Cv ketel bouwjaar 2016

Garage

Garage Inpandig
Garage capactiteit 1

Benieuwd naar de waarde van uw woning?

Vraag nu een objectieve, deskundige waardebepaling aan.

Aanvragen
Meer informatie 0113-250555
Deel deze woning

Kaart

Heeft u interesse?

Neem dan via onderstaand formulier contact op om een bezichtiging in te plannen.

Om op een woning te bieden, is het belangrijk dat u weet wat u kunt lenen. Wij kunnen u daarin adviseren. Laat gratis de waarde van uw huidige woning bepalen, ontvang een vrijblijvend hypotheekadvies en/of vraag een second opinion voor uw hypotheekadvies aan. Vink de gewenste aanvullende diensten aan in het formulier.

    *

    *

    *

    *

    Aanvullende opties



    AVG *