Westwal 2

4461CM GOES Verkocht
244 m² oppervlakte
656 m² perceel
5 slaapkamers

Omschrijving

In het historische stadshart van Goes staat dit bijzondere herenhuis, gebouwd in 1929. Hier gaan karakter en comfort hand in hand: originele glas-in-loodramen, vaste kasten en schouwen worden moeiteloos gecombineerd met moderne luxe, zoals een royale woonkeuken (2020), een stijlvolle badkamer (2023) en vijf volwaardige slaapkamers.

De woning is goed onderhouden, grotendeels geïsoleerd en is recent nog geschilderd.
Daarnaast beschikt het over een eigen parkeergelegenheid (3 auto's) met carport en een zonnige, besloten tuin op het zuidwesten.

Historie en uitstraling
Dit markante pand maakt deel uit van een kleinschalig complex ontworpen door architect A. Rothuizen, uitgevoerd in de karakteristieke Interbellum-stijl. Het geheel _ inclusief de aangrenzende panden _ is aangewezen als rijksmonument vanwege de bijzondere architectuur en materiaalgebruik.

Indeling
Begane grond
Via de charmante entree komt u in een ruime hal met visgraat parketvloer en statige trapopgang. De en suite woonkamer heeft meerdere zithoeken, een sfeervolle open haard en veel lichtinval dankzij de erkers. De ensuite deuren zijn origineel.
De luxe woonkeuken (2020) is een echte blikvanger. Uitgerust met hoogwaardige inbouwapparatuur _ waaronder een inductiekookplaat met geïntegreerde afzuiging, combi-oven, vaatwasser, koffiemachine, wijnklimaatkast, koelkast en Quooker voor kokend én bruisend water _ biedt deze ruimte alles voor kookliefhebbers. Een zonnige toegangsdeur verbindt de keuken direct met het terras.
Aan de andere zijde van de begane grond bevindt zich een multifunctionele ruimte, nu ingericht met bar en als tv kamer met decoratieve vaste kasten, ideaal als kantoor, speelkamer of atelier. Aangrenzend ligt de praktische bijkeuken met witgoedaansluitingen en de kelder.

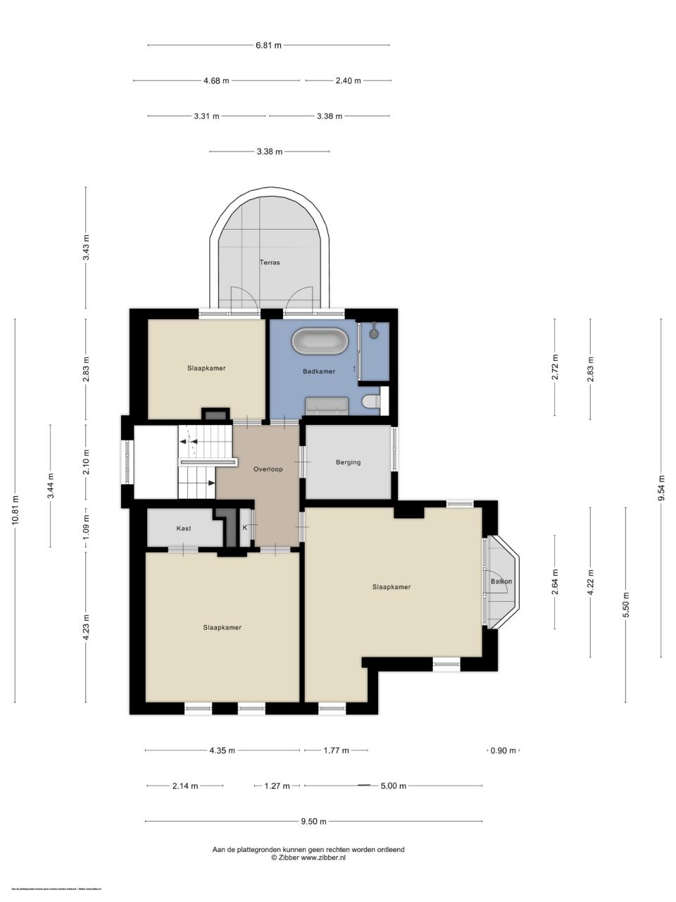
Eerste verdieping
Op deze verdieping vindt u drie ruime slaapkamers. De grootste slaapkamers (ca. 23 m² ) heeft een sfeervolle schouw (ook een van de andere slaapkamers heeft een schouw) en toegang tot een eigen balkon. De badkamer (2023) is modern en luxe uitgevoerd met een vrijstaand ligbad, royale inloopdouche, dubbele wastafel en toilet.

Tweede verdieping
De verrassend ruime tweede verdieping beschikt over twee goede slaapkamers (beide ca. 11 m²), twee bergruimtes en een zolderkamer van ca. 15 m² _ ideaal als extra slaap-, werk- of hobbyruimte. Op zowel de 1e als 2e verdieping ligt een houten vloer en zijn er meerdere inbouw- en kleine inloopkasten.

Tuin
De verzorgde, omsloten achtertuin (2020) ligt op het zuidwesten en biedt volop zon en privacy. Met een terras direct achter de woning, een vrije achterom en een houten berging achterin, is dit een tuin waar het heerlijk toeven is.
Dit is een woning die u echt van binnen moet zien om de sfeer en ruimte goed te ervaren. Wij nodigen u dan ook graag uit voor een bezichtiging.

Op het pand zit naast woonbestemming ook een maatschappelijke bestemming, dus naast wonen kunt u er ook werken.

Oplevering in overleg.
Vraagprijs: € 774.000

Lees de volledige omschrijving

Overdracht

Status Verkocht
Aanvaarding in overleg

Bouw

Type Woonhuis
Type woning Vrijstaande woning
Soort woning Eengezinswoning
Bouwjaar 1929
Onderhoud binnen Goed
Onderhoud buiten Goed
Dak Zadeldak
Dak materialen Pannen

Vrijblijvend gesprek met onze hypotheekadviseur?

Tuin

Tuin Tuin rondom
Tuin oppervlakte 656
Hoofd tuin Tuin rondom
Hoofd tuin opp. 216 m²
Tuin ligging Zuid, west

Woonhuis

Kamers 7
Slaapkamers 5
Woonopp. 244 m²
Inhoud 927 m³
Perceelopp. 656 m²
Keuken Woonkeuken
Ligging Aan drukke weg, in centrum
Bijzonderheden Beschermd stads- of dorpsgezicht, monument
Voorzieningen Mechanische ventilatie, buitenzonwering, berging, overloop, balkon, berging, overloop, bijkeuken, toilet, hal

Locatie

Ligging Aan drukke weg, in centrum

Energie

Verwarming C.v.-ketel
Warm water Elektrische boiler eigendom
Cv ketel Intergas
Cv ketel bouwjaar 2023

Garage

Garage Geen garage

Berging

Berging type Vrijstaand hout

Benieuwd naar de waarde van uw woning?

Vraag nu een objectieve, deskundige waardebepaling aan.

Aanvragen
Meer informatie 0113-250555
Deel deze woning

Kaart

Heeft u interesse?

Neem dan via onderstaand formulier contact op om een bezichtiging in te plannen.

Om op een woning te bieden, is het belangrijk dat u weet wat u kunt lenen. Wij kunnen u daarin adviseren. Laat gratis de waarde van uw huidige woning bepalen, ontvang een vrijblijvend hypotheekadvies en/of vraag een second opinion voor uw hypotheekadvies aan. Vink de gewenste aanvullende diensten aan in het formulier.

    *

    *

    *

    *

    Aanvullende opties



    AVG *