Vlasmarkt 8A

4461CW GOES Vraagprijs: € 295.000,- k.k.
106 m² oppervlakte
72 m² perceel
2 slaapkamers

Omschrijving

Midden in het dynamische stadscentrum van Goes, ligt dit recent gerenoveerde appartement op de 1e en 2e etage van een karakteristiek pand. Een woning die direct een prettige indruk maakt door de lichte ruimtes, het open karakter en het fraaie uitzicht op de rustige vlasmarkt. Hier woon je letterlijk op loopafstand van winkels, horeca en voorzieningen, terwijl je thuis kunt genieten van rust en comfort.

Het appartement is verdeeld over twee woonlagen en biedt volop mogelijkheden. De basis is goed, de afwerking verzorgd en de indeling biedt ruimte om het geheel verder naar eigen wens te optimaliseren.

Indeling

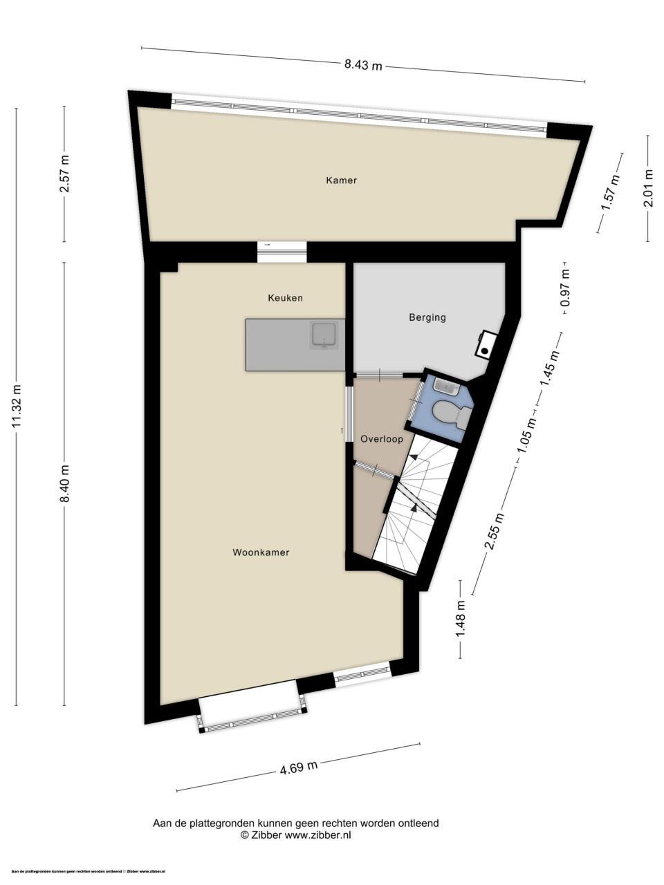
Eerste verdieping
Via de eigen entree op de begane grond kom je met de trap op de overloop. De lichte voorkamer is prima geschikt als werk- of zitkamer. De ruime woonkamer vormt samen met de open keuken een prettig geheel, waarbij licht en ruimte centraal staan. De open keukenopstelling sluit mooi aan op de leefruimte en draagt bij aan het moderne woongevoel. Aan de achterkant is een royale slaapkamer van ca. 16m2. Daarnaast is er op deze verdieping een praktische berging met cv opstelling en witgoedaansluitingen en een toilet aanwezig.

Tweede verdieping
De tweede verdieping beschikt over een comfortabele slaapkamer met toegang tot het dakterras en een nette badkamer in goede staat. Daarnaast is er een tweede kamer die eveneens is voorzien van een keukenopstelling. Deze ruimte biedt diverse gebruiksmogelijkheden, bijvoorbeeld als extra woonruimte, studio, werkplek of logeerkamer. De zichtbare balken en de kapconstructie geven deze verdieping extra karakter.

Buitenruimte en uitzicht
Aan de achterzijde is een royaal dakterras van ca. 16m2 waar het heerlijk toeven is.

Bijzonderheden
-Gelegen in het centrum van Goes
-Recent gerenoveerd appartement
-Woonruimte verdeeld over twee verdiepingen
-Ruime woonkamer met open keuken
-Slaapkamer, badkamer en extra kamer met keuken op de tweede verdieping
-Praktische berging aanwezig
-Veel potentie en flexibel in te delen
-Fraai uitzicht over de Goese binnenstad
-Woonoppervlakte: circa 106 m²

Een woning met karakter, mogelijkheden en een toplocatie. Ideaal voor wie stedelijk wil wonen en tegelijkertijd ruimte zoekt om het appartement helemaal naar eigen smaak verder vorm te geven.

Onder de woonruimte bevindt zich een commerciële ruimte van ca. 60 m² met een eigen entree aan de straatzijde. Deze ruimte wordt eveneens te koop aangeboden en biedt de mogelijkheid deze samen te voegen met de bovenwoning. Heeft u ook interesse in de benedenruimte? Vraag dan naar de verkoopbrochure bij de makelaar.

Het is eventueel mogelijk deze woning te verhuren als 2 separate studio's.

Dus mogelijk ook interessant als belegging.

Lees de volledige omschrijving

Overdracht

Vraagprijs Vraagprijs: € 295.000,- k.k.
Status beschikbaar
Aanvaarding in overleg

Bouw

Type Appartement
Soort woning Bovenwoning
Kenmerk Appartement
Bouwjaar 1948
Onderhoud binnen Redelijk
Onderhoud buiten Redelijk
Dak Zadeldak
Dak materialen Pannen

Vrijblijvend gesprek met onze hypotheekadviseur?

Appartement

Kamers 4
Slaapkamers 2
Woonopp. 106 m²
Inhoud 349 m³
Perceelopp. 72 m²
Woonkamer Woonkamer
Keuken Open keuken, open keuken
Ligging Beschutte ligging, in centrum
Bijzonderheden Beschermd stads- of dorpsgezicht
Voorzieningen Tv kabel, airconditioning, glasvezel kabel, berging, berging, toilet

Locatie

Ligging Beschutte ligging, in centrum

Energie

Energielabel D
Isolatie Dakisolatie, dubbel glas, muurisolatie, vloerisolatie, volledig geïsoleerd
Verwarming C.v.-ketel
Warm water C.v.-ketel
Cv ketel Remeha

Garage

Garage Geen garage

Benieuwd naar de waarde van uw woning?

Vraag nu een objectieve, deskundige waardebepaling aan.

Aanvragen
Meer informatie 0113-250555
Deel deze woning

Kaart

Heeft u interesse?

Neem dan via onderstaand formulier contact op om een bezichtiging in te plannen.

Om op een woning te bieden, is het belangrijk dat u weet wat u kunt lenen. Wij kunnen u daarin adviseren. Laat gratis de waarde van uw huidige woning bepalen, ontvang een vrijblijvend hypotheekadvies en/of vraag een second opinion voor uw hypotheekadvies aan. Vink de gewenste aanvullende diensten aan in het formulier.

    *
    *
    *
    *
    Aanvullende opties



    AVG *